1283 W 106th StreetCleveland, OH 44102




Mortgage Calculator
Monthly Payment (Est.)
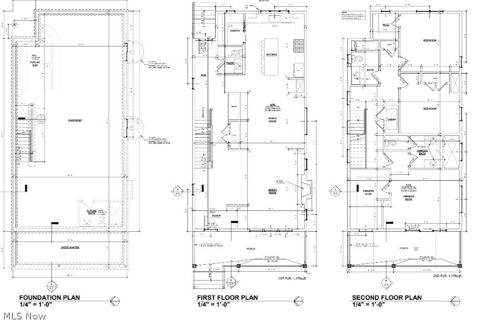
$3,422Prime Build Opportunity in Edgewater – Plans + Momentum Included Exceptional opportunity to build in one of Cleveland’s most desirable and rapidly growing neighborhoods—Edgewater. Located just minutes from Edgewater Park, Lake Erie, and the vibrant Detroit Shoreway corridor, this vacant parcel offers the ideal blend of lifestyle, location, and long-term upside. What sets this lot apart is the head start it offers. The current owner has already completed key pre-development work, including a survey, site planning, and full architectural plans for a thoughtfully designed single-family home (approx. 3 bed, 2.5 bath, ~2,400 sq ft above grade with additional basement space). Plans have been submitted to the City, allowing a future buyer to step into the process with significant time savings. Buyers have the flexibility to: Move forward with the existing plans and accelerate their build timeline Or bring their own vision and design a custom home from the ground up The lot features 40’ frontage with a layout that supports a functional footprint, detached garage, and off-street parking. Preliminary site planning has already accounted for driveway placement and overall usability. For those exploring new construction, the seller can also connect buyers with reputable local builders who are familiar with the plans and site. Whether you’re an end-user looking to build a primary residence or an investor seeking a high-demand location, this is a rare chance to secure a ready-to-go homesite in a premier west side neighborhood. Price includes lot plus estimated cost to build based on quotes from 3 different builders and may be higher/lower depending upon your own needs. Lot is being sold for $119,000 and this listing with home build is for illustrative purposes.
| 4 hours ago | Listing first seen on site | |
| 8 hours ago | Listing updated with changes from the MLS® |
The data relating to real estate for sale on this website comes in part from the Internet Data Exchange program of MLS NOW. Real estate listings held by brokerage firms other than are marked with the Internet Data Exchange logo and detailed information about them includes the name of the listing broker(s). The photos may be altered, edited, enhanced or virtually staged. Information Deemed Reliable But Not Guaranteed. Copyright 2026 - Multiple Listing Service, Inc. – All Rights Reserved.
